Desain Interior Kamar Tidur Utama Master Bedroom 3x3.8m: Solusi Cerdas Rumah Tipe 5x11 di Wisata Bukit Mas
Custom Furniture

Desain Interior Kamar Tidur Utama Master Bedroom 3x3.8m: Solusi Cerdas Rumah Tipe 5x11 di Wisata Bukit Mas

Perumahan Wisata Bukit Mas, Cluster Paddington, Lidah Wetan, Lakarsantri, Surabaya

Desain Interior Kamar Tidur Utama Master Bedroom 3x3.8m: Solusi Cerdas Rumah Tipe 5x11 di Wisata Bukit Mas - Custom Furniture Perumahan Wisata Bukit Mas, Cluster Paddington, Lidah Wetan, Lakarsantri, Surabaya

Tentang Proyek

Desain Interior Kamar Tidur Utama 3x3.8m: Maksimalkan Kenyamanan di Rumah Tipe 5x11

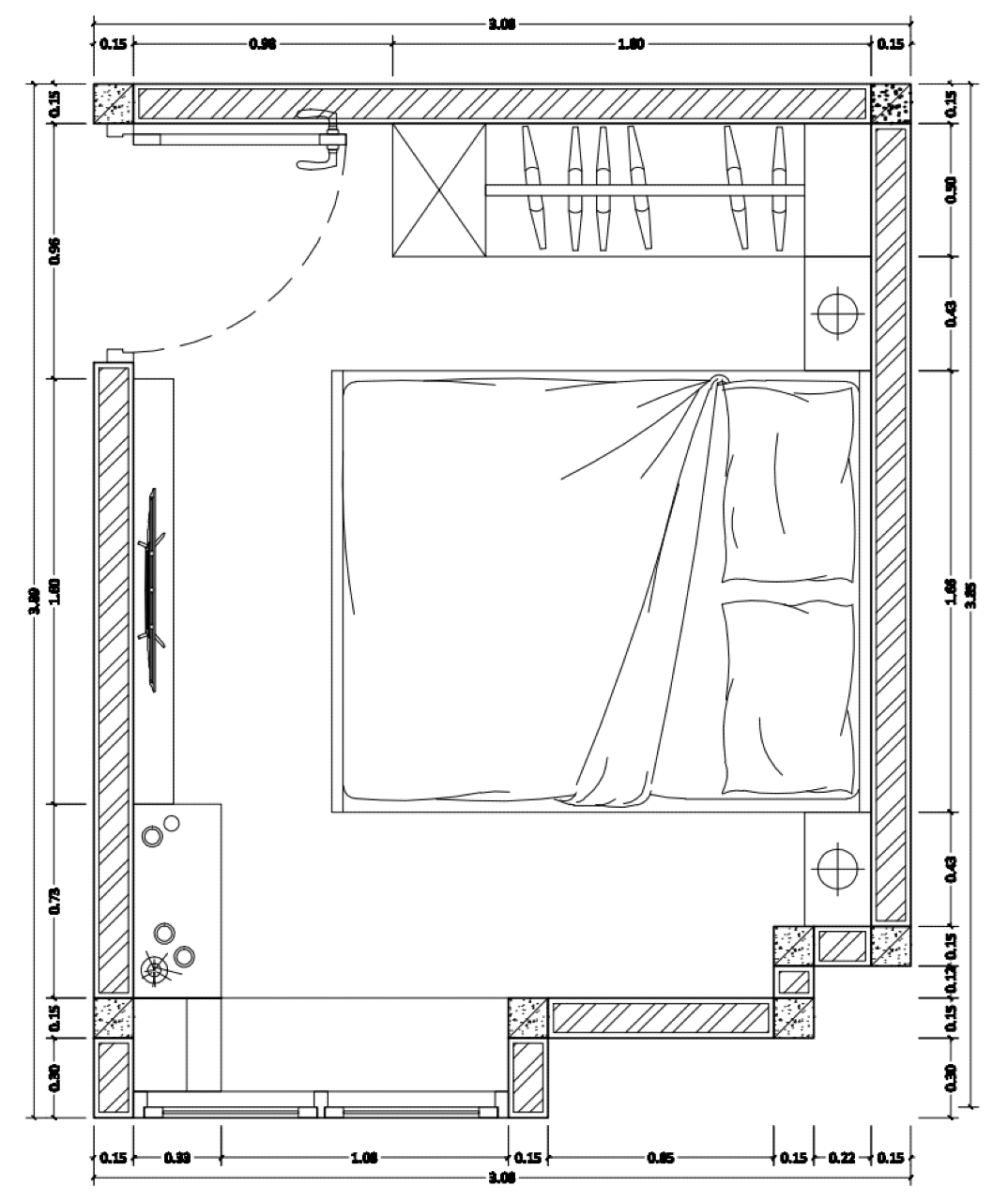
Mendapatkan kenyamanan maksimal di lahan terbatas adalah tantangan utama bagi pemilik rumah tipe 5x11 atau 5x12, seperti di kawasan Cluster Paddington, Wisata Bukit Mas (WBM), Surabaya Barat. Dengan ukuran kamar tidur utama sekitar 3 x 3.8 meter, pemilihan furniture toko (loose furniture) seringkali membuat ruangan terasa sempit dan tidak efisien.

UNIC Home menghadirkan solusi custom interior yang presisi. Tujuan utamanya adalah memasukkan semua fasilitas kamar utama—mulai dari tempat tidur queen size hingga area berhias—tanpa mengorbankan sirkulasi gerak.

Layout Cerdas untuk Ruang 3x3.8 Meter

Kunci dari proyek ini adalah pemanfaatan setiap sentimeter ruang dengan furniture yang didesain khusus (custom made):

1. Area Tidur yang Elegan

Kami menempatkan ranjang ukuran 160 cm (Queen Size) lengkap dengan dipan dan headboard custom yang menempel ke dinding. Desain headboard dibuat minimalis namun mewah untuk menjadi focal point ruangan.

Di sisi kanan dan kiri tempat tidur, terdapat nakas kecil (floating nightstand). Desain melayang ini membuat lantai di bawahnya mudah dibersihkan, menjaga ruangan tetap higienis dan terasa lebih luas.

2. Hiburan & Penyimpanan Compact

Pada sisi dinding depan tempat tidur, UNIC Home menginstalasi Backdrop TV dengan meja TV kecil yang ramping. Desain ini memungkinkan klien menikmati hiburan di dalam kamar tanpa memakan jarak pandang atau menghalangi jalan.

3. Area Rias & Wardrobe Terintegrasi

Kebutuhan penyimpanan dipenuhi lewat Lemari Baju (Wardrobe) yang didesain tinggi (full plafon). Di sebelahnya, kami menyelipkan Meja Rias lengkap dengan cermin dan lemari penyimpanan kecil untuk kosmetik. Penataan ini menciptakan alur aktivitas yang nyaman: bangun tidur, memilih pakaian, dan berhias dalam satu area yang efisien.

Spesifikasi Proyek

Lokasi Proyek : Perumahan Wisata Bukit Mas, Cluster Paddington, Surabaya
Tipe Rumah : 5 x 11 Meter
Ukuran Kamar : 3 x 3.8 Meter (Master Bedroom)
Material Utama : Plywood Grade A, Finishing HPL (High Pressure Laminate)
Item Pengerjaan : Dipan + Headboard, Nakas, Wardrobe, Backdrop TV, Meja Rias + Kabinet.

Solusi Interior untuk Warga Surabaya Barat

Tinggal di area Citraland, Graha Natura, atau Wisata Bukit Mas dengan tipe rumah compact? Jangan biarkan ukuran kamar membatasi kenyamanan istirahat Anda.

UNIC Home siap membantu Anda merancang layout terbaik dengan material yang tahan terhadap kelembapan Surabaya. Dapatkan estimasi harga transparan dan desain yang sesuai gaya hidup Anda.

Ingin kamar tidur seperti ini?
Konsultasi Gratis via WhatsApp

Detail Proyek

  • Kategori Custom Furniture
  • Tipe Proyek Interior Kamar, Kamar Utama, Master Bedroom
  • Lokasi Perumahan Wisata Bukit Mas, Cluster Paddington, Lidah Wetan, Lakarsantri, Surabaya
  • Selesai Pada July 2023
  • Koordinat Peta Lihat di Google Maps

Konsultasi via WhatsApp

Galeri Foto

Desain Interior Kamar Tidur Utama Master Bedroom 3x3.8m: Solusi Cerdas Rumah Tipe 5x11 di Wisata Bukit Mas - Gallery 1
Desain Interior Kamar Tidur Utama Master Bedroom 3x3.8m: Solusi Cerdas Rumah Tipe 5x11 di Wisata Bukit Mas - Gallery 2
Desain Interior Kamar Tidur Utama Master Bedroom 3x3.8m: Solusi Cerdas Rumah Tipe 5x11 di Wisata Bukit Mas - Gallery 3
Desain Interior Kamar Tidur Utama Master Bedroom 3x3.8m: Solusi Cerdas Rumah Tipe 5x11 di Wisata Bukit Mas - Gallery 4
Desain Interior Kamar Tidur Utama Master Bedroom 3x3.8m: Solusi Cerdas Rumah Tipe 5x11 di Wisata Bukit Mas - Gallery 5
Desain Interior Kamar Tidur Utama Master Bedroom 3x3.8m: Solusi Cerdas Rumah Tipe 5x11 di Wisata Bukit Mas - Gallery 6
Desain Interior Kamar Tidur Utama Master Bedroom 3x3.8m: Solusi Cerdas Rumah Tipe 5x11 di Wisata Bukit Mas - Gallery 7
Desain Interior Kamar Tidur Utama Master Bedroom 3x3.8m: Solusi Cerdas Rumah Tipe 5x11 di Wisata Bukit Mas - Gallery 8
Desain Interior Kamar Tidur Utama Master Bedroom 3x3.8m: Solusi Cerdas Rumah Tipe 5x11 di Wisata Bukit Mas - Gallery 9
Desain Interior Kamar Tidur Utama Master Bedroom 3x3.8m: Solusi Cerdas Rumah Tipe 5x11 di Wisata Bukit Mas - Gallery 10
Desain Interior Kamar Tidur Utama Master Bedroom 3x3.8m: Solusi Cerdas Rumah Tipe 5x11 di Wisata Bukit Mas - Gallery 11

Pertanyaan Umum

Durasi pengerjaan bervariasi tergantung luasan dan kompleksitas. Rata-rata tahap desain memakan waktu 2-4 minggu, sedangkan tahap produksi dan instalasi berkisar antara 4-8 minggu.
Kami melayani keduanya. Mulai dari pekerjaan sipil (renovasi lantai, plafon, cat) hingga pembuatan custom furniture (kitchen set, lemari, backdrop TV).
Biaya disesuaikan dengan kebutuhan, luasan, dan material yang dipilih. Kami menawarkan konsultasi gratis untuk estimasi awal. Silakan hubungi WA kami untuk detail penawaran.
Konsultasi Gratis